|
|
產品展示 > PZ40電表箱 |
|
|
|
|
添加時間:2013/7/25 9:33:51 熱度:2239℃ |
|
 |
概述 |
PZ40系列電表箱分明裝和暗裝兩種,它適用于賓館、工礦、企業(yè)單位、民用高層建筑的用電計量箱,箱體結構合理,造型美觀、拆裝方便、安全可靠。面板上設有透視窗,可直接觀察用電量;下設有塑料小盒可任意組合電器開關,箱體上下側均有敲落孑L,便于進出線安裝。 |
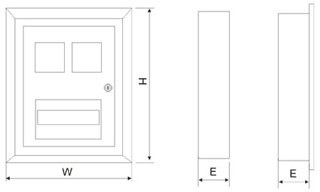
外形尺寸圖 |
 |
(暗裝)箱體尺寸 |
 | |
|
上一個:戶外工地箱
下一個:戶外電表箱 |
<<返回 |
|
|
|
|
|
|
|
產品系列 |
|
|
聯(lián)系方式 |
|
· 電話:0577-62753890 57576785 |
· 傳真:0577-27859795 |
· 網(wǎng)址:http://9tjb2.cn |
· 郵箱:guokon@cnguokon.com |
|
|
|